ID CP2658725

CASA TIP DUPLEX | COMPLEX REZIDENTIAL OTOPENI

ID CP2658725

215,000 €

Casă / Vilă cu 4 camere de vânzare
Odai, Otopeni
145 mp

Rivera Real Estate vă prezintă o casă tip duplex modernă, perfectă pentru familiile care își doresc un cămin confortabil și spațios, într-o locație liniștită și privată. Situată într-un complex rezidențial din Otopeni, această locuință oferă un design contemporan, gândit pentru a asigura confortul și funcționalitatea necesară unei vieți moderne.

Designul casei

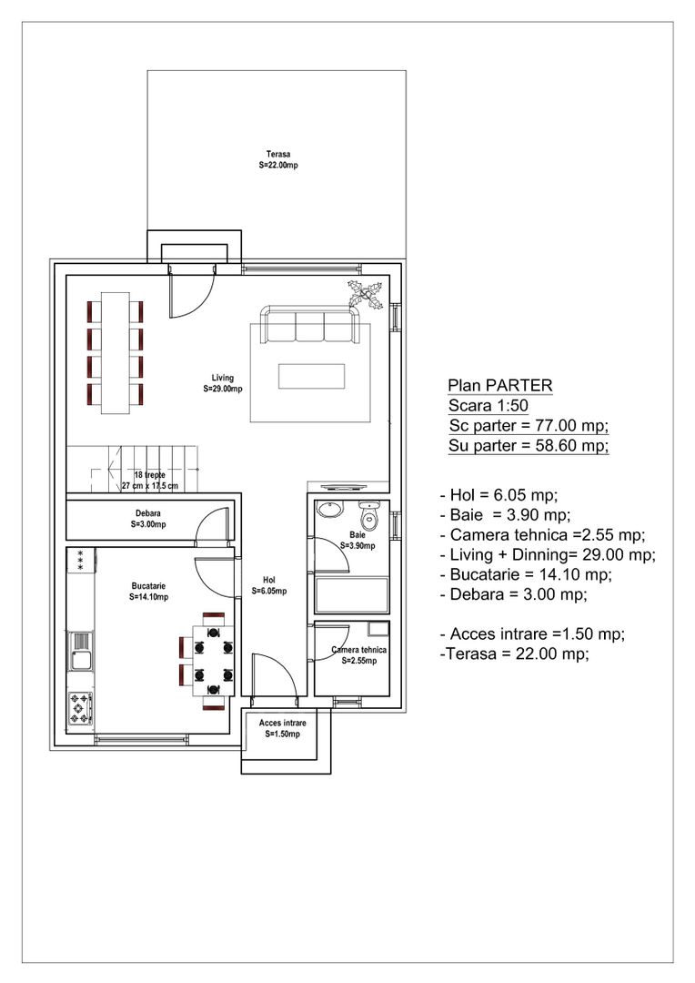
Casa tip duplex dispune de parter, etaj și mansardă (P+1+M), oferind un spațiu generos pentru fiecare membru al familiei. La parter, veți găsi un living deschis, ideal pentru petrecerea timpului în familie, și o bucătărie spațioasă, care poate fi amenajată conform preferințelor dvs. De asemenea, la acest nivel există un baie de serviciu pentru un plus de confort.

La etaj, casa include dormitoare luminoase și elegante.

Mansarda poate fi folosită ca birou, sală de hobby sau zonă de relaxare. Fiecare detaliu este gândit pentru a crea un spațiu funcțional și plăcut.

Finisaje și dotări de lux

Casa tip duplex este dotată cu încălzire în pardoseală, centrală termică proprie, gresie și faianță de înaltă calitate, parchet elegant, uși interioare moderne și obiecte sanitare de top. De asemenea, beneficiati de o curte privată ideală pentru relaxare sau activități în aer liber.

Facilități

Locuința este prevăzută cu 2 locuri de parcare private, oferind siguranță și confort. Complexul rezidențial beneficiază de toate utilitățile orașului, oferind un trai modern și comod.

Dacă sunteți în căutarea unei case moderne și spațioase într-o zonă liniștită și privată, această casă tip duplex din Otopeni este alegerea ideală pentru familia dumneavoastră.

Pentru detalii suplimentare, nu ezitați să ne contactați!

COMISION 0%.

Citește mai mult

  • Număr camere
    4
  • Dormitoare
    2
  • Număr bucătării
    1
  • Număr băi
    2
  • Număr locuri parcare
    2
  • Disponibilitate
    Imediat
  • Tip casă
    Duplex
  • Stare interior
    Finisat modern
  • Anul finisării
    2025
  • Suprafață utilă
    145 mp
  • Suprafață construită
    170 mp
  • Suprafață teren
    229 mp
  • Suprafață curte liberă
    180 mp
  • Stadiu construcție
    Finalizată
  • Număr etaje clădire
    2

Facilități

Apă
Cabină de duș
Cadă
Centrală proprie
Curent
Curte
Faianță
Fosă septică
Gaz
Grădină proprie
Gresie
Iluminat stradal
Încălzire prin pardoseală
Izolație exterioară
Mijloace de transport în comun
Parcare deschisă
Parchet
Pază permanentă
Străzi asfaltate
Străzi betonate
Ușă intrare metal
Vopsea lavabilă
Anastasia Moldovschi - Rivera Real Estate
Anastasia Moldovschi
Sales Associate

‪+40 769 951 033‬


Solicită chiar acum o vizionare
Telefon
Sună acum Solicită vizionare
Necesare:

Site-ul nu poate funcționa corect fără aceste cookie-uri. Vezi cookie-urile

Statistică:

Strângem statistici anonime despre voi, vizitatorii unici, pentru a vă îmbunătăți experiența dumneavoastră. Vezi cookie-urile

Marketing:

Pentru a ne promova mai eficient serviciile noastre, folosim cookies pentru a vă identifica și a vă oferi proprietăți și servicii personalizate. Vezi cookie-urile

Acest site folosește cookies, află detalii. Alege ce tipuri de cookies dorești să permitem: