ID CP2437694

APARTAMENT 3 CAMERE | PROIECT NOU | METROU ANGHEL SALIGNY

ID CP2437694

167,000 € + 21% TVA

Apartament cu 3 camere de vânzare
Theodor Pallady, Bucuresti
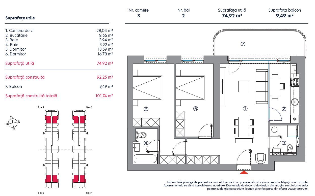
74.92 mp
2025

***PENTRU MAI MULTE OFERTE ACCESAȚI RIVERAREALESTATE.RO

Rivera Real Estate vă propune spre achiziție un apartament cu 3 camere, situat într-un ansamblu rezidențial nou din zona Pallady, la doar câteva minute de stația de metrou Anghel Saligny. Cu termen de finalizare în 2026, această locuință este concepută pentru confort, eficiență energetică și un stil de viață modern.

Studioul beneficiază de ferestre mari, care permit luminii naturale să inunde spațiul, și de încălzire în pardoseală, asigurând un climat plăcut pe tot parcursul anului. Sistemul modern de ventilație cu recuperare de căldură menține un aer proaspăt și sănătos, reducând în același timp consumul de energie.

Ansamblul dispune de panouri fotovoltaice, iar 30% din suprafața totală este dedicată spațiilor verzi și zonelor de relaxare. Locuitorii au acces la locuri de joacă pentru copii, alei pietonale fără trafic auto și zone special amenajate pentru relaxare.

Parcarea este exclusiv subterană, cu prețuri între 13.000 și 15.000 Euro + TVA, în funcție de nivel. Accesul se face direct din lift, oferind siguranță și confort zilnic.

Apartamentul este finisat cu materiale de înaltă calitate, de la tâmplărie cu geam tripan pentru izolare termică și fonică, până la pardoseli rezistente și uși securizate. Băile sunt dotate cu sanitare premium, iar bucătăria este pregătită pentru a fi personalizată după preferințele viitorului proprietar.

Achiziția poate fi realizată din surse proprii, prin credit bancar sau în rate direct la dezvoltator, cu condiții flexibile de plată.

Dacă îți dorești un apartament modern, eficient energetic și bine conectat, contactează-mă pentru mai multe detalii și hai să programăm o vizionare!

Studioul se vinde nemobilat.

*Pozele sunt din showroom si au carcter informativ.

***COMISION 0%

Citește mai mult

  • Tip apartament
    Apartament
  • Compartimentare
    Decomandat
  • Număr camere
    3
  • Dormitoare
    2
  • Număr bucătării
    1
  • Număr băi
    2
  • Etaj
    1, 2, 3, 4, 5, 6, 7, 8, 9, 10, 11
  • Suprafață utilă
    74.92 mp
  • Suprafață construită
    92.25 mp
  • Suprafață totală
    101.74 mp
  • Disponibilitate
    Imediat
  • Confort
    Lux
  • Stare interior
    Finisat modern
  • Număr balcoane
    1
  • Imobil
    Bloc de apart.
  • Stadiu construcție
    În construcție
  • An construcție
    2025
  • Construcție nouă
    Da
  • Tip construcție
    Beton
  • Număr etaje clădire
    12
  • Număr etaje retrase
    1
  • Număr subsoluri
    3

Facilități

Acces pentru persoane cu dizabilități
Apă
Apometre
Canalizare
CATV
Centrală proprie
Contor electric
Contor gaz
Curent
Curte comună
Faianță
Ferestre PVC
Garaj subteran
Gaz
Geamuri tripan
Gresie
Iluminat stradal
Încălzire prin pardoseală
Internet
Lift
Loc de joacă copii
Mijloace de transport în comun
Nemobilat
Parchet
Spații agrement
Străzi asfaltate
Telefon
Uși interior celulare
Videointerfon
Vopsea lavabilă
Silviu Amisculesei - Rivera Real Estate
Silviu Amisculesei
Partner & Head of Sales

+40 755 279 089


Solicită chiar acum o vizionare
Telefon
Sună acum Solicită vizionare
Necesare:

Site-ul nu poate funcționa corect fără aceste cookie-uri. Vezi cookie-urile

Statistică:

Strângem statistici anonime despre voi, vizitatorii unici, pentru a vă îmbunătăți experiența dumneavoastră. Vezi cookie-urile

Marketing:

Pentru a ne promova mai eficient serviciile noastre, folosim cookies pentru a vă identifica și a vă oferi proprietăți și servicii personalizate. Vezi cookie-urile

Acest site folosește cookies, află detalii. Alege ce tipuri de cookies dorești să permitem: