ID CP2593818

APARTAMENT 2 CAMERE+BIROU | PROIECT NOU | PREMIUM | STEFAN CEL MARE

ID CP2593818

260,000 € + 21% TVA

Apartament cu 3 camere de vânzare
Stefan cel Mare, Bucuresti
70.35 mp
2025

Rivera Real Estate vă propune spre achiziție un apartament cu 2 camere+birou, situat în inima Capitalei, intr-un proiect nou, de tip boutique.

Detalii generale:

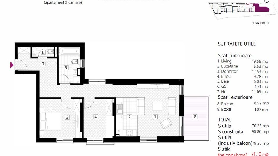
- Suprafață utilă interioară: 70.35 mp

- Suprafață utilă(cu balcon și boxă): 79.27mp

- Suprafață construită totală: 99.72mp

- Etaj: 1

Preț: 260.000 € + TVA

Compartimentare inteligentă:

- Living generos de 20.83 mp – ideal pentru relaxare și socializare

- Dormitor spațios de 13.82 mp, luminos și bine proporționat

- Birou elegant, ideal pentru work from home

- Bucătărie separată de 7.11 mp – spațiu eficient, ideal pentru gătit zilnic

- Baie completă de 4.19 mp, dotată pentru confort maxim

- Hol bine configurat – 6.07 mp, cu zonă de depozitare

- Balcon de 8.26 mp – perfect pentru momente de relaxare la aer curat

- Boxă de 3.09 mp – spațiu de depozitare dedicat

Beneficii & Finisaje Premium:

- Finisaje moderne și elegante, cu materiale de calitate superioară

- Tâmplărie performantă, pardoseli rezistente și băi complet mobilate

- Luminozitate excelentă datorită ferestrelor ample și orientării optime

Posibilitate de parcare individuală

Preturile locurilor de parcare: 20.000 Eur+TVA

Proiectul dispune de zonă verde, terasă comună și spațiu de joacă pentru copii

Sistem de securitate și control acces pentru confort și siguranță

Locație privilegiată:

Situat într-o zonă centrală și accesibilă a Bucureștiului, în apropiere de Șoseaua Ștefan Cel Mare si Bulevardul Dacia, oferă acces rapid la mijloace de transport, școli, restaurante, supermarketuri și puncte de interes esențiale.

Ideal pentru:

- Tineri profesioniști

- Cupluri sau familii la început de drum

- Investiție sigură și stabilă, într-o zonă cu potențial ridicat de creștere

Imaginile au caracter informativ.

Proiectul este în construcție și va fi finalizat la finalul anului 2025.

Vrei să vezi apartamentul?

Programează o vizionare acum și descoperă cum arată viitorul tău cămin.

Citește mai mult

  • Tip apartament
    Apartament
  • Compartimentare
    Decomandat
  • Număr camere
    3
  • Dormitoare
    2
  • Număr bucătării
    1
  • Număr băi
    2
  • Etaj
    1
  • Suprafață utilă
    70.35 mp
  • Suprafață construită
    90.8 mp
  • Suprafață totală
    99.72 mp
  • Disponibilitate
    Imediat
  • Confort
    Lux
  • Stare interior
    Finisat modern
  • Anul finisării
    2025
  • Număr balcoane
    1
  • Imobil
    Bloc mixt
  • Stadiu construcție
    În construcție
  • An construcție
    2025
  • Construcție nouă
    Da
  • De la dezvoltator
    Da
  • Tip construcție
    Beton
  • Număr etaje clădire
    4

Facilități

Apă
Bucătărie închisă
Canalizare
CATV
Centrală imobil
Curent
Faianță
Ferestre PVC
Garaj subteran
Gaz
Geamuri termopan
Gresie
Iluminat stradal
Încălzire prin pardoseală
Internet
Izolație exterioară
Lift
Loc de joacă copii
Magazie
Mijloace de transport în comun
Parchet
Străzi asfaltate
Ușă intrare metal
Vopsea lavabilă
Silviu Amisculesei - Rivera Real Estate
Silviu Amisculesei
Partner & Head of Sales

+40 755 279 089


Solicită chiar acum o vizionare
Telefon
Sună acum Solicită vizionare
Necesare:

Site-ul nu poate funcționa corect fără aceste cookie-uri. Vezi cookie-urile

Statistică:

Strângem statistici anonime despre voi, vizitatorii unici, pentru a vă îmbunătăți experiența dumneavoastră. Vezi cookie-urile

Marketing:

Pentru a ne promova mai eficient serviciile noastre, folosim cookies pentru a vă identifica și a vă oferi proprietăți și servicii personalizate. Vezi cookie-urile

Acest site folosește cookies, află detalii. Alege ce tipuri de cookies dorești să permitem: