ID CP2113148
VILA FINALIZATA | CORBEANCA | EFICIENTA | SPATIU | CONFORT
ID CP2113148
248,000 €
***PENTRU MAI MULTE OFERTE ACCESATI RIVERAREALESTATE.RO
Vă prezentăm o vilă de tip duplex, situată pe un teren generos, ce poate fi amenajat după gustul viitorului proprietar.
Dotări și beneficii:
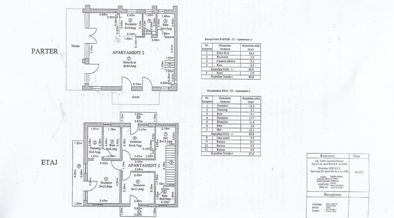
- Suprafață utilă: 156 mp
- Pompa de căldură electrică → eficiență energetică și independență
- Curte cu aspersoare automate pentru întreținerea gazonului
- Puț forat la 46 m, cu țeavă albastră aprobată pentru alimentație + analiză de calitate Apa Nova
- Manoperă pentru finisaje inclusă în preț (gresie, faianță, parchet, uși, obiecte sanitare)
- Acord de racordare la gaz + posibilitate racord Raja
- Cota parte drum acces: ~50 mp
-2 locuri de parcare
Compartimentare inteligentă:
- Parter: bucătărie + living open space cu suprafață vitrată mare, lumină naturală și acces direct prin 3 ieșiri către terasa exterioară.
- Etaj: 3 dormitoare, fiecare cu balcon propriu. Dormitorul matrimonial dispune de dressing generos și baie proprie.
Această vilă este alegerea ideală pentru cei care caută confort, intimitate și spațiu, într-o locuință modernă și eficientă energetic.
***Pozeledin anunt respecta compartimentarea reala a vilei si au rol orientativ.
📞 Pentru mai multe detalii și programarea unei vizionări, nu ezitați să ne contactați.
Comision 0 % !
 
         
         
         
         
         
         
         
         
         
         
         
         
         
         
         
         
         
         
         
         
         
         
         
         
         
         
         
         
         
         
         
         
         
         
         
         
         
         
         
         
         
         
         
         
         
         
         
         
         
         
         
         
         
         
         
         
         
         
         
         
         
         
         
         
         
         
         
         
         
         
         
         
         
         
         
         
         
         
         
         
         
         
         
         
         
         
         
         
         
         
         
         
         
         
         
         
         
         
         
         
         
         
         
         
         
         
         
         
         
         
         
         
         
         
         
         
         
         
         
         
         
         
         
        