ID CP2074118
Apartament 3 camere | Mobilat si Utilat | Loc parcare | Casa Presei
    Această proprietate nu mai este activă,
    
    te invităm să vizualizezi proprietăți similare
  
ID CP2074118
900 €
Apartament cu 3 camere de închiriat
                    P-ta Presei Libere, Bucuresti
                    
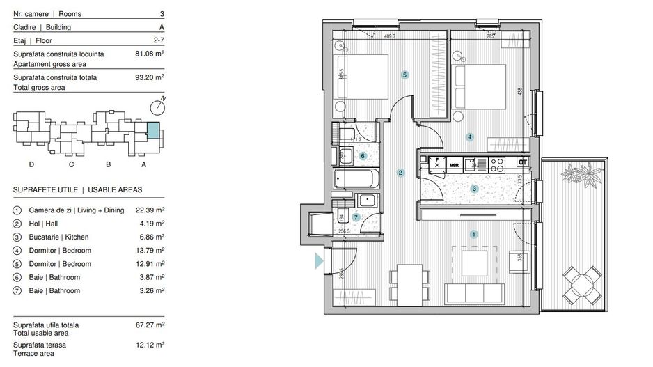
                      67.27 mp
                    
                    
                      2023
                    
                  Rivera Real Estate va prezinta un apartament cu 3 camere, intr-un bloc nou finalizat, situat in zona Piata Presei Libere.
Apartamentul vine la pachet cu o serie de avantaje remarcabile:
> Locatie: Situat intr-o zona Premium - Piata Presei acest proiect ofera o pozitie privilegiata fiind in apropiere de Parcul Herastrau;
> Mijloace de transport in comun;
> Magazine si Super-market-uri in apropiere;
> Vedere catre lac;
> Constructie si materiale de cea mai buna calitate tamplarie de aluminiu si finisaje de top;
> Raport calitate-pret excelent.
*Apartamentul este complet mobilat si utilat, exact ca in poze.
* Un loc de parcare inclus.
Comision 50%
 
         
         
         
         
         
         
         
         
         
         
         
         
         
         
         
         
         
         
         
         
         
         
         
         
         
         
         
         
         
         
         
         
         
         
         
         
         
         
         
         
         
         
         
         
         
         
         
         
         
         
         
         
         
         
         
         
         
         
         
         
         
         
         
         
        