ID CP2395957

APARTAMENT 2 CAMERE | PALLADY | PROIECT NOU

ID CP2395957

95,000 € + 21% TVA

Apartament cu 2 camere de vânzare
Theodor Pallady, Bucuresti
42.05 mp
2025

***PENTRU MAI MULTE OFERTE ACCESAȚI RIVERAREALESTATE.RO

Rivera Real Estate vă propune spre achiziție un apartament modern cu 2 camere, situat într-un complex rezidential nou, în zona Pallady.

Descoperă un apartament modern, parte dintr-un ansamblu rezidențial nou, amplasat într-o zonă liniștită, retrasă de la bulevardul principal, dar bine conectată cu orașul. Locuința beneficiază de compartimentare eficientă, suprafețe vitrate mari ce oferă lumină naturală din abundență, încălzire în pardoseală și finisaje de înaltă calitate.

Ansamblul rezidențial pune accent pe confortul comunității, oferind spații verzi, locuri de joacă, zone de relaxare, grădini private pentru apartamentele de la parter și alei pietonale fără acces auto. În plus, vei avea acces facil la centre comerciale, școli și stația de metrou Nicolae Teclu, aflată la doar 500 de metri distanță.

Achiziție flexibilă – rate direct la dezvoltator

Dacă nu dispui de întreaga sumă pentru achiziție, ai posibilitatea de a plăti în rate lunare fixe, direct la dezvoltator. Valoarea ratei și perioada de rambursare vor fi stabilite în funcție de avansul disponibil și nevoile tale, astfel încât să îți poți păstra echilibrul financiar.

Proiectul dispune de locuri de parcare subterane.

Pret locuri de parcare:

- Suprateran demisol: 14.000 EURO

- Subteran - 1: 13.000 EURO

- Subteran - 2: 12.000 EURO

Termen de finalizare: 2026.

***Pozele sunt din showroom si au caracter informativ.

Contactează-ne pentru mai multe detalii și programează o vizionare!

Citește mai mult

  • Tip apartament
    Apartament
  • Compartimentare
    Semidecomandat
  • Număr camere
    2
  • Dormitoare
    1
  • Număr bucătării
    1
  • Număr băi
    1
  • Etaj
    1, 2, 3, 4, 5, 6, 7, 8, 9, 10
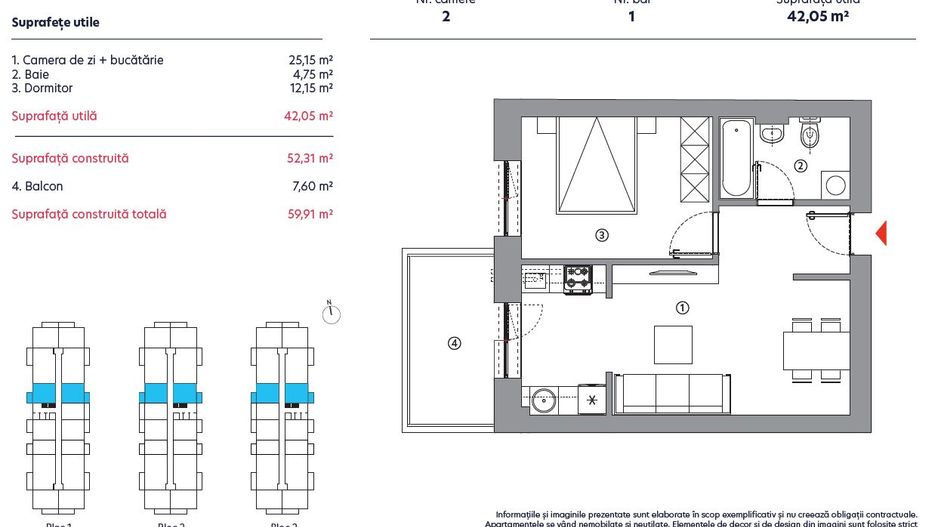
  • Suprafață utilă
    42.05 mp
  • Suprafață construită
    52.31 mp
  • Suprafață totală
    59.91 mp
  • Stare interior
    Finisat modern
  • Număr balcoane
    1
  • Imobil
    Bloc de apart.
  • Stadiu construcție
    În construcție
  • An construcție
    2025
  • Construcție nouă
    Da
  • De la dezvoltator
    Da
  • Număr etaje clădire
    11
  • Număr etaje retrase
    1
  • Număr subsoluri
    2

Facilități

Apă
Apometre
Bucătărie deschisă
Canalizare
CATV
Contor electric
Contor gaz
Curent
Curte comună
Faianță
Ferestre PVC
Gaz
Gresie
Iluminat stradal
Internet
Lift
Mijloace de transport în comun
Parchet
Pază
Străzi asfaltate
Supraveghere video
Telefon
Ușă intrare metal
Uși interior MDF
Videointerfon
Vopsea lavabilă
Silviu Amisculesei - Rivera Real Estate
Silviu Amisculesei
Partner & Head of Sales

+40 755 279 089


Solicită chiar acum o vizionare
Telefon
Sună acum Solicită vizionare
Necesare:

Site-ul nu poate funcționa corect fără aceste cookie-uri. Vezi cookie-urile

Statistică:

Strângem statistici anonime despre voi, vizitatorii unici, pentru a vă îmbunătăți experiența dumneavoastră. Vezi cookie-urile

Marketing:

Pentru a ne promova mai eficient serviciile noastre, folosim cookies pentru a vă identifica și a vă oferi proprietăți și servicii personalizate. Vezi cookie-urile

Acest site folosește cookies, află detalii. Alege ce tipuri de cookies dorești să permitem: