ID CP2043928

Apartament 2 camere | Piata Presei Libere | Parter cu gradina

Această proprietate nu mai este activă,
te invităm să vizualizezi proprietăți similare

ID CP2043928

168,900 € + 21% TVA

Apartament cu 2 camere de vânzare
P-ta Presei Libere, Bucuresti
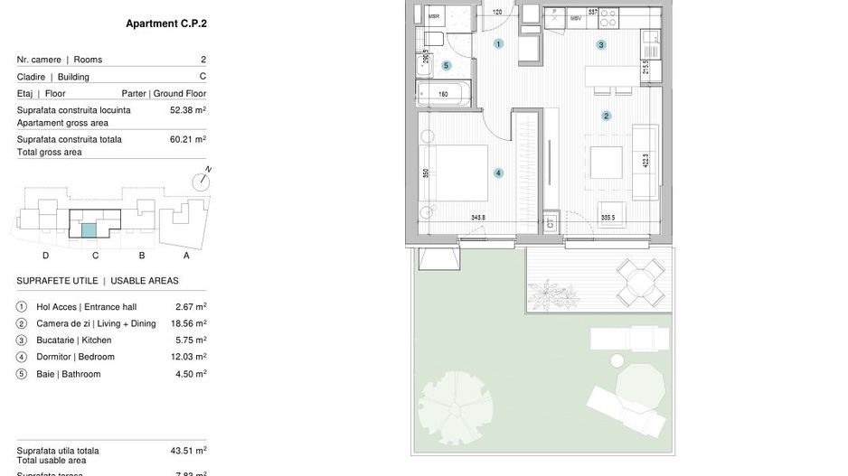
43.51 mp
2023

Rivera Real Estate va prezinta un apartament cu 2 camere intr-un bloc nou finalizat in zona Piata Presei Libere. Apartamentul este situat la parter si dispune de o gradina generoasa de 37.06 mp.

Proiectul vine la pachet cu o serie de avantaje remarcabile:

> Locatie: Situat intr-o zona Premium - Piata Presei acest proiect ofera o pozitie privilegiata fiind in apropiere de Parcul Herastrau.

> Constructie si materiale de cea mai buna calitate tamplarie de aluminiu si finisaje de top.

> Raport calitate-pret excelent.

Pretul apartamentului este 168.900 Euro + TVA.

Complexul dispune de locuri parcare subterana si supraterana care se achizitioneaza separat.

- Parcare subterana - 19.000 EUR+TVA;

- Parcare supraterana acoperita - 16.000 EUR+TVA;

- Parcare supraterana - 15.000 EUR+TVA;

- Parcare subterana in sistem Klauss - 9.000 EUR+TVA.

Apartamentul se vinde nemobilat.

*Pozele sunt din showroom si au caracter informativ..

***COMISION 0%

Citește mai mult

  • Tip apartament
    Apartament
  • Compartimentare
    Decomandat
  • Număr camere
    2
  • Dormitoare
    1
  • Număr bucătării
    1
  • Număr băi
    1
  • Etaj
    Parter
  • Suprafață utilă
    43.51 mp
  • Suprafață construită
    52.38 mp
  • Suprafață totală
    60.21 mp
  • Suprafață curte
    37.06 mp
  • Disponibilitate
    Imediat
  • Confort
    Lux
  • Imobil
    Bloc de apart.
  • Stadiu construcție
    Finalizată
  • An construcție
    2023
  • Construcție nouă
    Da
  • De la dezvoltator
    Da
  • Tip construcție
    Beton
  • Număr etaje clădire
    7

Facilități

Aer condiționat
Apă
Boxă la subsol
Canalizare
Centrală proprie
Curent
Curte comună
Faianță
Ferestre aluminiu
Gaz
Geamuri tripan
Gresie
Iluminat stradal
Încălzire prin pardoseală
Interfon
Izolație exterioară
Lift
Loc de joacă copii
Mijloace de transport în comun
Parchet
Străzi asfaltate
Ușă intrare metal
Vopsea lavabilă
Necesare:

Site-ul nu poate funcționa corect fără aceste cookie-uri. Vezi cookie-urile

Statistică:

Strângem statistici anonime despre voi, vizitatorii unici, pentru a vă îmbunătăți experiența dumneavoastră. Vezi cookie-urile

Marketing:

Pentru a ne promova mai eficient serviciile noastre, folosim cookies pentru a vă identifica și a vă oferi proprietăți și servicii personalizate. Vezi cookie-urile

Acest site folosește cookies, află detalii. Alege ce tipuri de cookies dorești să permitem: